-
SUZUKI CAPPUCCINO, Mounting block for APR GT3 side mirrors 본문
SUZUKI CAPPUCCINO, Mounting block for APR GT3 side mirrors
** This article was written through the Papago translator.

I was looking for a new side mirror for Suzuki Cappuccino, and I thought the GT3 Carbon side mirror of APR Performance(CB-100004B, about $200) was suitable. However, mounting blocks were needed to fit the side mirrors, and there was nothing for the Suzuki cappuccino. I thought of two ways.


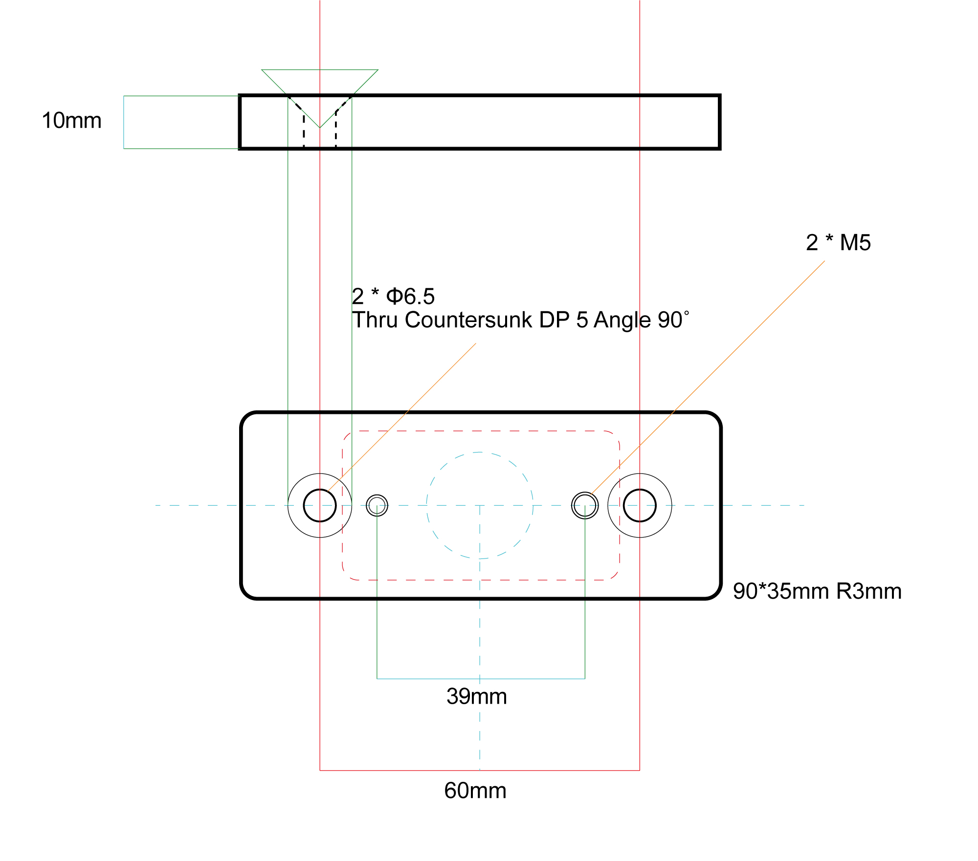
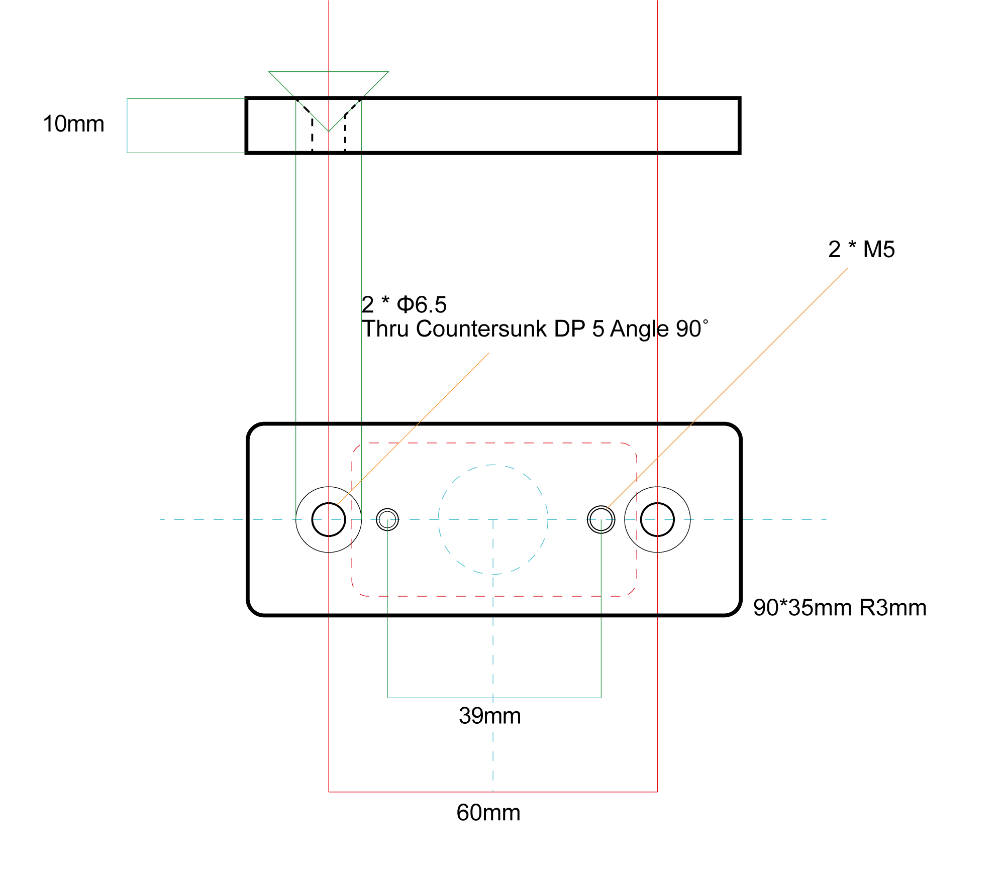
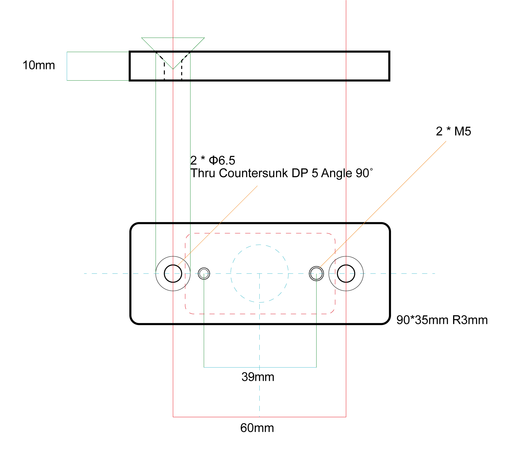
The first is to make an adapter. The shape was a little rough, but I thought it could be easily made without any special techniques. The hole-to-hole distance between the side-mirror fixing bolts of the Suzuki Cappuccino is 60mm (important). The hole-to-hole distance between the fixing bolts of the APR GT3 Universal Side Mirror Mount is 39mm (the manufacturer did not disclose this information, and I measured this myself). I thought I'd drill four holes in a simple-looking block (two of which require thread taping), and I asked a friend for help. Based on this image, an adapter block with a refined shape was created.

My friend didn't like the idea of using adapter blocks. He wanted to clone the APR Universal Mount to create a dedicated mount for Suzuki Cappuccino. Suzuki Cappuccino's exclusive side mirror mount looks even cooler. Instead, production costs are more expensive. Actually, I didn't ask him to make a mount, but he made it with the adapter block and sent it to me.

Mount was made using aluminum material. Ball stud bolt was also made by cutting aluminum because it could not find suitable ready-made components. Ball studs of APR Universal Mount are made of steel. My friend said that because it is a 'prototype', he used material that is easy to manufacture, and that there will be no major durability problem.

Test. I installed the APR GT3 side mirror in Suzuki Cappuccino using my friend's original mount. The location of the screw hole was accurate and strong enough to not shake while driving.

However, as expected, the quality of the aluminum ball studs was not satisfactory. In order for the side mirror to be firmly mounted without shaking in strong winds, the screw must be tightened with strong torque. When I took the screw apart after driving, I found that the thread was slightly crushed. It's not fatal right now. However, there remains uncertainty that aluminum 'fatigue destruction' may occur.

Therefore, I reinstalled the side mirror using the block adapter and APR Universal Mount, which were the first ideas. Although more screws are used and the structure is complex, it is thought to be a more reliable method in the current situation. If ball studs made of steel are added, cappuccino mounts will be fully available.
APR_UNIVERSAL_MOUNT.pdf0.19MBAttach a drawing of the APR Universal Mount replica written by a friend. Combined with the aforementioned block adapter dimensions, it won't be difficult for you to design a new side mirror mount dedicated to Suzuki Cappuccino.
---
나는 스즈키 카푸치노를 위한 새로운 사이드미러를 찾고 있었고, APR Performance의 GT3 Carbon 사이드미러(CB-100004B, 약 200달러) 가 적합하다고 생각했다. 그러나 이 사이드미러를 장착하기 위해서는 마운팅 블록이 필요했고, 스즈키 카푸치노를 위한 것은 없었다. 나는 두 가지 방법을 생각했다.
첫째는 어댑터를 제작하는 것. 모양이 조금 투박하지만 특별한 기술 없이 쉽게 만들 수 있다고 생각되었다. 스즈키 카푸치노의 사이드미러 고정 볼트 사이의 홀 투 홀 거리는 60mm다. (중요함) APR GT3 유니버설 사이드미러 마운트의 고정 볼트 사이 홀 투 홀 거리는 39mm다. (제조사는 이 정보를 공개하지 않았고, 나는 이것을 직접 측정했다.)
나는 단순하게 생긴 블록에 네 개의 구멍(그 중 두 개는 나사산 탭 작업이 필요함)을 뚫기로 생각했고, 친구에게 도움을 구했다. 이 이미지를 바탕으로 모양을 다듬은 어댑터 블록이 만들어졌다.
내 친구는 어댑터 블록을 사용하는 아이디어를 좋아하지 않았다. 그는 APR 유니버설 마운트를 복제해 스즈키 카푸치노 전용 마운트를 제작하기를 원했다. 스즈키 카푸치노 전용 사이드미러 마운트는 더욱 멋있어 보인다. 대신 제작비용이 더욱 비싸다. 사실 나는 그에게 마운트 제작을 부탁하지 않았는데, 어댑터 블록과 함께 만들어서 보내왔다.
마운트는 알루미늄 소재를 사용해 만들었다. 필로우볼 또한 알루미늄을 깎아 만들었는데, 기성 부품 중 적합한 것을 찾지 못했기 때문이다. APR 유니버설 마운트의 볼 스터드는 스틸 소재다. 내 친구는 이것은 '프로토타입'이기 때문에 제작이 쉬운 소재를 사용했고, 내구성에 큰 문제가 없을 것이라 말했다.
테스트. 나는 친구가 만든 오리지널 마운트를 이용해 APR GT3 사이드미러를 스즈키 카푸치노에 설치했다. 나사 구멍 위치는 정확했고, 주행 중 흔들리지 않을 정도로 견고했다.
그러나 예상대로 알루미늄 볼 스터드의 품질은 만족스럽지 않았다. 강한 바람 속에서 사이드미러가 흔들림 없이 단단하게 장착되려면 강한 토크로 나사를 조여야 한다. 주행을 마치고 나사를 분해하니, 나사산이 약간 뭉개진 것을 발견했다. 당장 치명적이지는 않다. 그러나 알루미늄 소재의 '피로 파괴'가 언제 발생할지 모른다는 불안이 남았다.
따라서 나는 첫 번째 아이디어였던 블록 어댑터와 APR 유니버설 마운트를 사용해 사이드미러를 다시 설치했다. 더 많은 나사를 사용하고 구조가 복잡하지만, 현재 상황에서 더 신뢰할 수 있는 방식이라 생각된다. 스틸 소재 볼 스터드를 더한다면 카푸치노 전용 마운트는 충분히 사용 가능할 것으로 생각된다.
친구가 작성한 APR 유니버설 마운트 복제품의 도면을 첨부한다. 앞서 언급한 블록 어댑터의 치수와 결합한다면 당신이 스즈키 카푸치노 전용 사이드미러 마운트를 새로 설계하는 것은 어렵지 않을 것이다.'Cappuccino (EA11-R)' 카테고리의 다른 글
MERCEDES-BENZ SLK 230 R170, 떠나보낸 미인을 추억하며 (2) 2022.12.17 SUZUKI CAPPUCCINO, 브레이크 오버홀 (0) 2020.06.14 SUZUKI CAPPUCCINO Service manual (UK, EN, pdf) (0) 2020.01.12 반가워, CAPPUCCINO. 3개월 만이야 (0) 2019.09.27 SUZUKI CAPPUCCINO, 엔진 오버홀... 부품 수배 (2) 2019.07.18 Comments